Láncos hinta csúszdával RH6152KW - barna (szab. mag. 1 m)
Termékkód: RH-6152KW-10
Láncos hinta csúszdával RH6152K - teljes fémszerkezet. Több információ
Válassza ki a színt
Műszaki adatok
| Termékkód: | RH-6152KW-10 |
|---|---|
| Súly: | 244.25 kg |
| Ajánlott életkor: | 2-15 év |
| Szabadesés magasság: | 1 m |
| Max. felhasználók száma: | 5 |
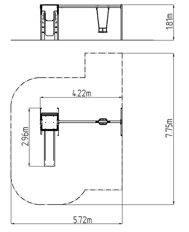
| Méretek: | 4,22 x 2,96 x 1,81 m |
| Szereléshez szükséges felület: | 7,22 x 7,75 m |
| Felület, eséstompítás: | az EN 1177 szabvány szerint- füvesített terület |
| Szabvány: | MSZ EN 1176-1:2017+A1:2024 MSZ EN 1176-2:2017+AC:2020 MSZ EN 1176-3:2018 |
A hinta tartószerkezete szerkezeti acélból készül, melyet a korrózióval szemben horganyzott felületkezeléssel látnak el, ezáltal jelentősen meghosszabbítják a játékelem élettartamát, valamint égetett KOMAXIT festékkel a RAL színskála alapján. E szerkezeteket betonágyba helyezik. Az összes további fém elem horganyzott vagy égetett KOMAXIT porfestékkel felületkezelt, a RAL színskála alapján.
A hinta horganyzott láncok segítségével van felakasztva a fém rúdra. A Normal hinta ülőkéje acélból készül, puha és kényelmes gumival van bevonva. Csúszdák üveggyapot anyagból készült. A csúszda eleje rendkívül jó minőségű HDPE műanyagból (nagy sűrűségű teljesen festett polietilén) készülnek, melyet nagyfokú színállandóság, UV-álló képesség és főleg biztonság jellemez, mivel nem törékeny, és ezáltal a gyerekeket nem fenyegeti az éles letörött részek általi sérülés veszélye. Emelvény HPL készült (Nagynyomású laminátum készül, melyet nagyfokú színállandóság, karcolásokkal szembeni ellenálló képesség és vízállóság). Az baby ülőke gumiból készül, és alumínium betétet tartalmaz. Az összekötőelemek horganyzottak vagy rozsdamentes acélból készülnek.
A termékhez Láncos hinta csúszdával RH6152KW - barna (szab. mag. 1 m) még senki sem írt kérdést vagy hozzászólást Ne habozzon kérdezni.
Műszaki adatlap [170 kB, PDF]
cs
sk
de
en
ro
lt



