Hozzájárul a sütik használatához, kérem?

Mászó összeállítás SS803D

Mászó összeállítás SS803D

Az azonos kategóriába tartozó termékek:

Termékkód: SS-803D-20

Az ülés és a lengőkarok nem tartoznak a lengéshez. Szükséges a megvásárolható ülőhely (1 db) és a csuklópántok (2 db). Mászófal, mászóháló, létrefokok, kötéllétra, mászókötél, ferde létre fém fokokkal, 2x kapaszkodó, csúszda, fém gerenda. Több információ

Kérdezte

Javasoljuk az alábbiak megvásárlását

Műszaki adatok

Termékkód: SS-803D-20
Ajánlott életkor: 3-15 év
Szabadesés magasság: 2 m
Max. felhasználók száma: 10
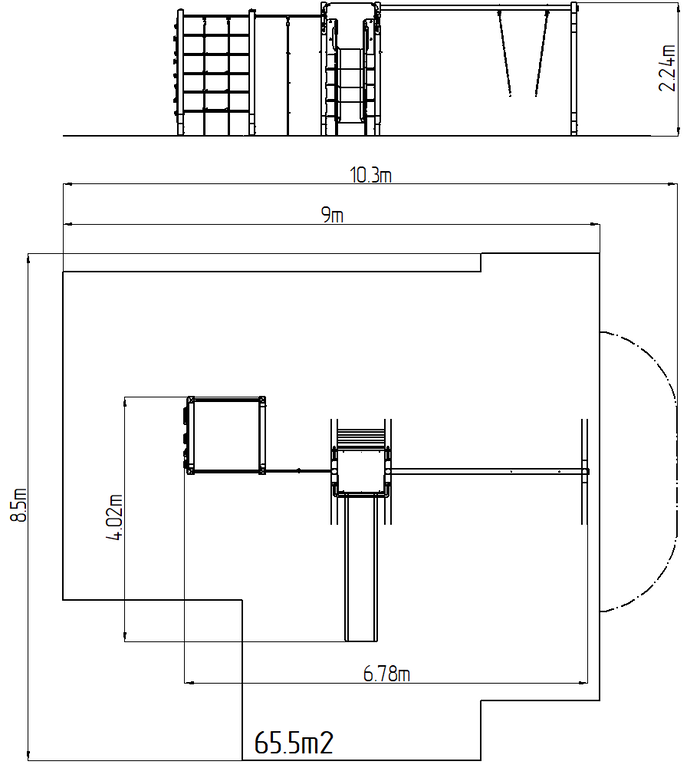
Méretek: 6,78 x 4,02 x 2,24 m
Szereléshez szükséges felület: 10,3 x 8,5 m
Felület, eséstompítás: az EN 1177 szabvány szerint
65,5 m2
Szabvány: MSZ EN 1176-1:2017+A1:2024
MSZ EN 1176-2:2017+AC:2020
MSZ EN 1176-3:2018
MSZ EN 1176-11:2015

A mászó összeállítás tartószerkezete es ragasztott hasábokból készül. Ez a megoldás a maximális lehetséges védelmet nyújtja repedések kialakulásával szemben, melyek gyakoriak az excentrikus hasábokból készült termékeknél. A hasábok felületkezelése az impregnálásban és a lazúrlakk három rétegben történő alkalmazásában rejlik, az EN 71/3 szabványnak megfelelően (biztonságos a gyerekjátékokhoz).

A szerkezeteket a talajban acél tartólábakban rögzítjük, melyek tűzi horganyzással védettek a korrózió ellen, és betonágyba helyezik őket. A dübelek csavarokkal vannak rögzítve a játékelemhez, és azok szerkezete garantálja, hogy a fa elemek nem lesznek közvetlen kapcsolatban a földdel. Az összes többi fémelem horganyzással vagy duplex rétegű égetett porfesték védi az RAL szabvány szerint.

A mászóháló és kötéllétra HERKULES anyagból (16 mm-es polipropilén kötél belső acélmaggal) készül. A kötéllétra és a mászóháló esetében a kötelek műanyag kapcsokkal vannak összekapcsolva. Csúszdák üveggyapot anyagból készült. A mászófal kültéri használatra alkalmas vízálló furnérlemezből készül. A hegymászó markolatok kvarchomokból és epoxigyantából készülnek - ez hosszú élettartamot, színállóságot és a kézbőrrel szemben kímélő felület biztosít. Az összekötőelemek horganyzottak vagy rozsdamentes acélból készülnek.

Új hozzászólás bejegyzése

A termékhez Mászó összeállítás SS803D még senki sem írt kérdést vagy hozzászólást Ne habozzon kérdezni.

Hasonló termék