UNIVERSAL 4U230D

Termékkód: 4U-231D-15
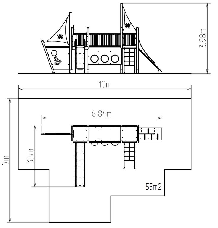
2x Négyoldalú torony, csúszda, rajztábla, híd kötélkorláttal, ferde mászóháló, ferde mászóka kötéllel és lépcsőkkel, fémkorlát fakeretbe ültetve, gát lőrés, 2x zászló, sisak, 2x gát HDPE. Több információ
Termékkód: | 4U-231D-15 |
---|---|
Ajánlott életkor: | 3-15 év |
Szabadesés magasság: | 1,5 m |
Max. felhasználók száma: | 18 |
Méretek: | 6,84 x 3,5 x 3,89 m |
Szereléshez szükséges felület: | 10 x 7 m |
Felület, eséstompítás: | az EN 1177 szabvány szerint 55 m2 |
Szabvány: | MSZ EN 1176-1:2017+A1:2024 MSZ EN 1176-3:2018 MSZ EN 1176-11:2015 |
A kalandtorony tartószerkezete es ragasztott hasábokból készül. Ez a megoldás a maximális lehetséges védelmet nyújtja repedések kialakulásával szemben, melyek gyakoriak az excentrikus hasábokból készült termékeknél.
A hasábok felületkezelése az impregnálásban és a lazúrlakk három rétegben történő alkalmazásában rejlik, az EN 71/3 szabványnak megfelelően (biztonságos a gyerekjátékokhoz). A szerkezeteket a talajban acél tartólábakban rögzítjük, melyek tűzi horganyzással védettek a korrózió ellen, és betonágyba helyezik őket. A dübelek csavarokkal vannak rögzítve a játékelemhez, és azok szerkezete garantálja, hogy a fa elemek nem lesznek közvetlen kapcsolatban a földdel. Az összes többi fémelem horganyzással vagy duplex rétegű égetett porfesték védi az RAL szabvány szerint.
Csúszdák üveggyapot anyagból készült. A csúszdák eleje, lépcsők, stb. rendkívül jó minőségű HDPE műanyagból (nagy sűrűségű teljesen festett polietilénből készülnek, melyet nagyfokú színállandóság, UV-álló képesség és főleg biztonság jellemez, mivel nem törékeny, és ezáltal a gyerekeket nem fenyegeti az éles letörött részek általi sérülés veszélye). Az emelvények és ferde falak HPL készülnek (Nagynyomású laminátum készülnek, melyet nagyfokú színállandóság, karcolásokkal szembeni ellenálló képesség és vízállóság). A kötelek HERKULES anyagból (16 mm-es polipropilén kötél belső acélmaggal) készülnek, és műanyag vagy alumínium kapcsokkal vannak összekötve. Az összekötőelemek horganyzottak vagy rozsdamentes acélból készülnek.
A termékhez UNIVERSAL 4U231D még senki sem írt kérdést vagy hozzászólást Ne habozzon kérdezni.