Hozzájárul a sütik használatához, kérem?

UNIVERSAL 4U202D

UNIVERSAL 4U202D

Az azonos kategóriába tartozó termékek:

Termékkód: 4U-202D-15

2x négyoldalú torony, A-alakú tető, ferde mászóháló, rajztábla a tornyon, csúszda, golyós számoló a torony alatt, 4x gát HDPE. Több információ

Kérdezte

Műszaki adatok

Termékkód: 4U-202D-15
Súly: 325.33 kg
Ajánlott életkor: 3-15 év
Szabadesés magasság: 1,5 m
Max. felhasználók száma: 8
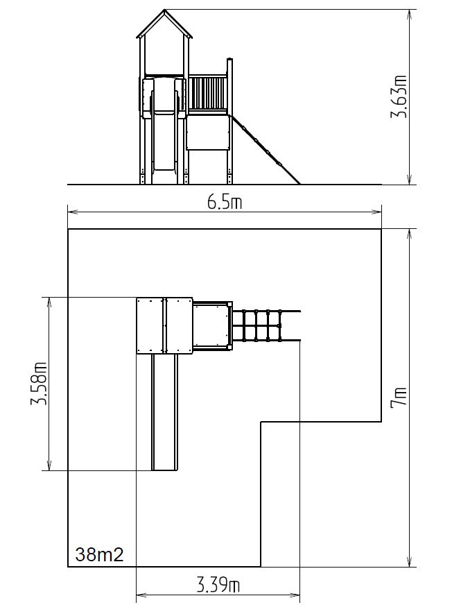
Méretek: 3,39 x 3,58 x 3,63 m
Szereléshez szükséges felület: 6,5 x 7 m
Felület, eséstompítás: az EN 1177 szabvány szerint
38 m2
Szabvány: MSZ EN 1176-1:2017+A1:2024
MSZ EN 1176-3:2018
MSZ EN 1176-11:2015

A kalandtorony tartószerkezete es ragasztott hasábokból készül. Ez a megoldás a maximális lehetséges védelmet nyújtja repedések kialakulásával szemben, melyek gyakoriak az excentrikus hasábokból készült termékeknél.

A hasábok felületkezelése az impregnálásban és a lazúrlakk három rétegben történő alkalmazásában rejlik, az EN 71/3 szabványnak megfelelően (biztonságos a gyerekjátékokhoz). A szerkezeteket a talajban acél tartólábakban rögzítjük, melyek tűzi horganyzással védettek a korrózió ellen, és betonágyba helyezik őket. A dübelek csavarokkal vannak rögzítve a játékelemhez, és azok szerkezete garantálja, hogy a fa elemek nem lesznek közvetlen kapcsolatban a földdel. Az összes többi fémelem horganyzással vagy duplex rétegű égetett porfesték védi az RAL szabvány szerint.

Csúszdák üveggyapot anyagból készült. A csúszdák eleje, lépcsők, stb. rendkívül jó minőségű HDPE műanyagból (nagy sűrűségű teljesen festett polietilénből készülnek, melyet nagyfokú színállandóság, UV-álló képesség és főleg biztonság jellemez, mivel nem törékeny, és ezáltal a gyerekeket nem fenyegeti az éles letörött részek általi sérülés veszélye). Az emelvények és rajztáblák HPL készülnek (Nagynyomású laminátum készülnek, melyet nagyfokú színállandóság, karcolásokkal szembeni ellenálló képesség és vízállóság). A kötelek HERKULES anyagból (16 mm-es polipropilén kötél belső acélmaggal) készülnek, és műanyag vagy alumínium kapcsokkal vannak összekötve. A tető HPL (Nagynyomású laminátum készül, melyet nagyfokú színállandóság, karcolásokkal szembeni ellenálló képesség, UV-álló képesség és vízállóság). Az összekötőelemek horganyzottak vagy rozsdamentes acélból készülnek.

Új hozzászólás bejegyzése

A termékhez UNIVERSAL 4U202D még senki sem írt kérdést vagy hozzászólást Ne habozzon kérdezni.

Hasonló termék